Budowa domu / instalacje domowe-wentylacja mechaniczna / rekuperacja.

Nasze hobby i zainteresowania, sprawy niemotoryzacyjne.

Postprzez cbr » 3 wrz 2017, 09:22

Tubi napisał(a):Ja mam pełne deskowanie na to 'papa i dachówka, żadnych folii nie mam.

No i też planuje tak zrobić.
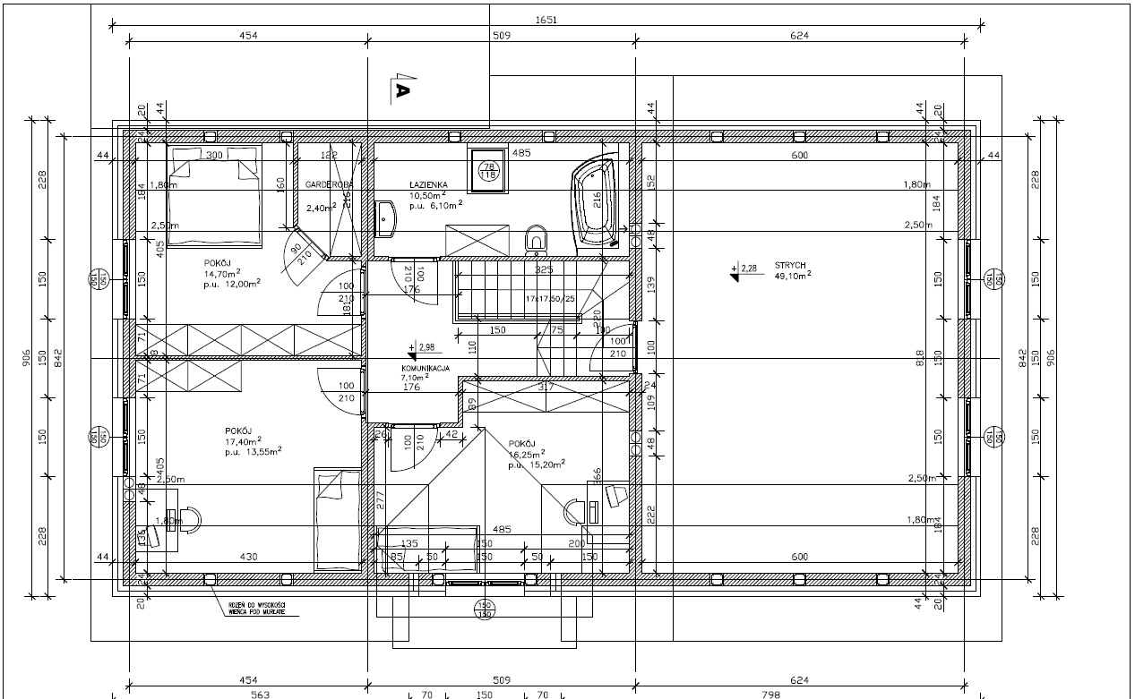
Myjk napisał(a):Gratki za start. Jak w końcu wygląda projekt

Dzięki, projekt finalnie wygląda tak, z małymi zmianami (brama garażowa 5m, mniejsze okno obok drzwi tarasowych i parę mniej istotnych)
parter.jpg
poddasze.jpg

Myjk napisał(a):OZC wykonane, jakie założenia?

Za OZC prawdopodobnie zimą się zabiorę, teraz i wypadło mi z głowy i tak naprawdę nie miałem zbytnio czasu się tym zająć. Ekipa i tak zostawia miejsce na 25cm styropianu w posadce a reszta będzie i tak robiona powoli od następnego roku więc mam czas.
Założenia są w tym roku postawić SSO może z dachem jak będzie wolna ekipa, jak nie to w następnym roku na wiosnę dach, później zamknąć i ocieplić. A reszta jak fundusze pozwolą może zrobi się też hydraulikę bądź elektrykę.
Ogólnie to będę za tydzień w kraju to jeszcze powiem dla ekipy aby nie robili wentylacji grawitacyjnej (rekuperacja w planach).
Stan na ten tydzień to:
21284489_1516548998384479_1836624819_o.jpg
2+2=5
Avatar użytkownika
Forumowicz
 
Od: 27 mar 2011, 00:01
Posty: 2823 (0/26)
Skąd: Białystok
Auto: Vauxhall Vectra SRI
Mazda3 109KM Y6 2004 (była)

Postprzez Myjk » 11 wrz 2017, 20:59

Pompa ciepła to zło! Tylko wyngiel grzeje!
Pozdor Myjk
Avatar użytkownika
Forumowicz
 
Od: 26 paź 2007, 07:01
Posty: 5873 (2/9)
Skąd: Warszawa
Auto: Mitsubishi Outlander
PHEV '20

Postprzez cbr » 12 wrz 2017, 10:11

Myjk nie wkręcaj :) Tutaj 90% osób wybiera pompę ciepła.
2+2=5
Avatar użytkownika
Forumowicz
 
Od: 27 mar 2011, 00:01
Posty: 2823 (0/26)
Skąd: Białystok
Auto: Vauxhall Vectra SRI
Mazda3 109KM Y6 2004 (była)

Postprzez Myjk » 12 wrz 2017, 12:21

cbr napisał(a):Myjk nie wkręcaj :) Tutaj 90% osób wybiera pompę ciepła.

Przepraszam, zapomniałem, jeszcze drywno grzeje równie dobrze co wyngiel. PC to zło, bo nie da się z powietrza -10sC zrobić +50sC. Nawet dziecko to wie! :P
Pozdor Myjk
Avatar użytkownika
Forumowicz
 
Od: 26 paź 2007, 07:01
Posty: 5873 (2/9)
Skąd: Warszawa
Auto: Mitsubishi Outlander
PHEV '20

Postprzez Tubi » 14 wrz 2017, 10:45

Pompociepłofob <lol>
Co się stanie, gdy jadąc z prędkością światła, włączysz przednie reflektory?
Avatar użytkownika
Forumowicz
 
Od: 20 lip 2009, 11:54
Posty: 1468 (10/16)
Skąd: Subkowy
Auto: Był:
Mazda Xedos 6 CA 2.0 MT 1992
Mazda Xedos 6 CA 2.0 MT 1994
Mazda Xedos 9 TA 2.5 AT 2000
Mazda 6 GY 2.3 MT 2005 fl
Jest:
Mazda 6 GJ SE 2.0 MT 2012

Postprzez Myjk » 14 wrz 2017, 11:25

Tubi napisał(a):Pompociepłofob <lol>

Ja-ja-ja-ja!

Tymczasem ja już mam zadaszenie z papą. Oczywiście z kolejnymi przygodami pt. wykonawca wie lepiej niż projekt i właściciel który będzie w domu mieszkać (że o jakości pracy nie pomnę): http://emide.pl/domnazakrecie/dachy-co-to-sa-jetki/
Pozdor Myjk
Avatar użytkownika
Forumowicz
 
Od: 26 paź 2007, 07:01
Posty: 5873 (2/9)
Skąd: Warszawa
Auto: Mitsubishi Outlander
PHEV '20

Postprzez loockas » 14 wrz 2017, 11:40

Fajną masz te ekipę. Spasowanie elementów powalające :)

Widzę, że budowa domu to fajne zajęcia. Nawet jak nie chcesz, to się musisz nauczyć wszystkiego i pilnować... Ja naiwny cały czas żyje w przekonaniu, że wystarczy zapłacić i zająć się swoją robotą :)
Andżeju, jak Ci na imię?
Avatar użytkownika
Forumowicz
 
Od: 5 maja 2007, 23:55
Posty: 10350 (317/596)
Skąd: Ymielin
Auto: PaRHaTy
Ajonik
Kupra

Postprzez Myjk » 14 wrz 2017, 11:57

Ja też tak naiwnie myślałem. Co trochę jest głupie patrząc, że wszędzie tak jest, np. u mechanika samochodowego -- żeby pozostać w temacie forum. Wspominałem dla przykładu, że mojemu ojcu wycieli w serwisie katalizator, prawdopodobnie po tym jak robili jazdę testową i im się maska otwarła wywalając przednią szybę? Musieli tak sobie pewnie koszty naprawy odbić...

Poza dokształcaniem nie pozostaje nic innego jak tylko grozić brakiem wypłaty jak nie poprawią bubli i zaniżać końcową cenę na każdym najmniejszym wykrytym bublu (nawet jak go w końcu poprawią). Tylko nie wszyscy tak potrafią bezwzględnie to respektować... <nie powiem>

Ja dokształcając się na temat domu skupiłem się głównie na samej funkcjonalności domu, projekcie, oraz założeniach energooszczędności. Resztę miał przypilnować choćby KB, ale ten (a właściwie TA) wykazał się zerowym wsparciem dla inwestora, znaczy mnie. Czasem odnoszę wrażenie, że aby nie narazić się na dyskusję z wykonawcami, po prostu im przytakuje na każdą bzdurę. Zresztą można o tym "elemencie" poczytać na blogu (tj. KB nie wszedł na strop sprawdzić poprawności wykonania zbrojenia stropu, bo się boi po drabinie chodzić).
Pozdor Myjk
Avatar użytkownika
Forumowicz
 
Od: 26 paź 2007, 07:01
Posty: 5873 (2/9)
Skąd: Warszawa
Auto: Mitsubishi Outlander
PHEV '20

Postprzez Tubi » 14 wrz 2017, 12:07

Tu macie rację, przez to pilnowanie wykonawców drugi dom bym chyba sam postawił, mając taką wiedzę jaką mam dzisiaj. Dwie ekipy wywaliłem z budowy widząc co odstawiają. Nawet głupiej dylatacji w posadzce nie potrafią zrobić równo tylko po skosie...

Myjk czemu takie naporoża, nie wolałeś dać chociażby kształtki U docieplanej od wewnątrz?
Co się stanie, gdy jadąc z prędkością światła, włączysz przednie reflektory?
Avatar użytkownika
Forumowicz
 
Od: 20 lip 2009, 11:54
Posty: 1468 (10/16)
Skąd: Subkowy
Auto: Był:
Mazda Xedos 6 CA 2.0 MT 1992
Mazda Xedos 6 CA 2.0 MT 1994
Mazda Xedos 9 TA 2.5 AT 2000
Mazda 6 GY 2.3 MT 2005 fl
Jest:
Mazda 6 GJ SE 2.0 MT 2012

Postprzez Myjk » 14 wrz 2017, 12:17

Tubi napisał(a):Myjk czemu takie naporoża, nie wolałeś dać chociażby kształtki U docieplanej od wewnątrz?

Konkretnie o co chodzi -- bo nie bardzo łapię po co nadproża docieplać od wewnątrz?
Pozdor Myjk
Avatar użytkownika
Forumowicz
 
Od: 26 paź 2007, 07:01
Posty: 5873 (2/9)
Skąd: Warszawa
Auto: Mitsubishi Outlander
PHEV '20

Postprzez brii » 14 wrz 2017, 12:22

Takie historie utwierdzają mnie w przekonaniu żeby nigdy nie myśleć o jakiejkolwiek budowie <glupek2>
Trusted computing – Yes or No?

Na świecie jest 10 rodzajów ludzi: ci, którzy rozumieją liczby binarne i ci, którzy nie.
Avatar użytkownika
Forumowicz
 
Od: 9 sty 2005, 22:46
Posty: 8975 (108/253)
Skąd: Częstochowa
Auto: Endek / Kupisiontes / Smark EV / iczy

Postprzez Myjk » 14 wrz 2017, 12:27

brii napisał(a):Takie historie utwierdzają mnie w przekonaniu żeby nigdy nie myśleć o jakiejkolwiek budowie <glupek2>

Znaczy jak się kupi gotowe, to będzie lepiej wykonane? Śmiem twierdzić, że nie. Jaka alternatywa jest -- w kartonie zamieszkać? Jak się samemu buduje to jest stres, czasem irytacja, ale przynajmniej można mieć jakiś wpływ. Im więcej determinacji, tym lepiej będzie zrobione.
Pozdor Myjk
Avatar użytkownika
Forumowicz
 
Od: 26 paź 2007, 07:01
Posty: 5873 (2/9)
Skąd: Warszawa
Auto: Mitsubishi Outlander
PHEV '20

Postprzez Tubi » 14 wrz 2017, 13:20

Myjk napisał(a):Konkretnie o co chodzi -- bo nie bardzo łapię po co nadproża docieplać od wewnątrz?


Ja u siebie robiłem tak ,że wewnątrz kształtki U mam styropian na ściankach i wtedy jest to zalane betonem ze zbrojeniem. Bo systemowe naporoże ytonga kosztowało kosmiczne pieniądze.

PS: Pochwalę się moim podjazdem, kostkę kładłem przez 1,5 miesiąca (140m2) ale popełniłem to całkiem sam :D W piątek skończą mi tynkować dom, więc zostanie płot i mam oficjalnie budowę zakończoną. Łącznie 3 lata z czego 2,5 mieszkam.
Załączniki
20170806_160545_resized.jpg
Co się stanie, gdy jadąc z prędkością światła, włączysz przednie reflektory?
Avatar użytkownika
Forumowicz
 
Od: 20 lip 2009, 11:54
Posty: 1468 (10/16)
Skąd: Subkowy
Auto: Był:
Mazda Xedos 6 CA 2.0 MT 1992
Mazda Xedos 6 CA 2.0 MT 1994
Mazda Xedos 9 TA 2.5 AT 2000
Mazda 6 GY 2.3 MT 2005 fl
Jest:
Mazda 6 GJ SE 2.0 MT 2012

Postprzez brii » 14 wrz 2017, 13:38

Myjk napisał(a):Znaczy jak się kupi gotowe, to będzie lepiej wykonane?

Nawet jeśli nie (bo pewnie będzie na tańszych materiałach) to przynajmniej nie będę się użerał z bandą budowlańców i tracił czasu ;) Najlepiej poszukać domu który ktoś zbudował dla siebie (tracąc nerwy i czas), zdarzają się niekiedy takie na sprzedaż ale tanie nie są.
Trusted computing – Yes or No?

Na świecie jest 10 rodzajów ludzi: ci, którzy rozumieją liczby binarne i ci, którzy nie.
Avatar użytkownika
Forumowicz
 
Od: 9 sty 2005, 22:46
Posty: 8975 (108/253)
Skąd: Częstochowa
Auto: Endek / Kupisiontes / Smark EV / iczy

Postprzez Myjk » 14 wrz 2017, 14:12

brii napisał(a):
Myjk napisał(a):Znaczy jak się kupi gotowe, to będzie lepiej wykonane?

Nawet jeśli nie (bo pewnie będzie na tańszych materiałach) to przynajmniej nie będę się użerał z bandą budowlańców i tracił czasu ;) Najlepiej poszukać domu który ktoś zbudował dla siebie (tracąc nerwy i czas), zdarzają się niekiedy takie na sprzedaż ale tanie nie są.

To też nie daje gwarancji, że taki dom jest w porządku. Wiele dzienników budowy widzę na forum FM gdzie ludzie pomimo pilnowania popełniają i pozostawiają błędy. Ilu buduje dla siebie, stresuje się, a mimo to błędów jest na pęczki, nawet nie staram się sobie wyobrażać. Więc jedyne co sobie oszczędzasz to te nerwy, ale w takim wypadku można zlecić budowę i zamknąć po prostu oczy.
Pozdor Myjk
Avatar użytkownika
Forumowicz
 
Od: 26 paź 2007, 07:01
Posty: 5873 (2/9)
Skąd: Warszawa
Auto: Mitsubishi Outlander
PHEV '20

Postprzez loockas » 14 wrz 2017, 14:36

Tubi napisał(a):PS: Pochwalę się moim podjazdem, kostkę kładłem przez 1,5 miesiąca (140m2) ale popełniłem to całkiem sam


Czas i ciężkie auta zweryfikują czy zrobiłeś to dobrze :P
Andżeju, jak Ci na imię?
Avatar użytkownika
Forumowicz
 
Od: 5 maja 2007, 23:55
Posty: 10350 (317/596)
Skąd: Ymielin
Auto: PaRHaTy
Ajonik
Kupra

Postprzez brii » 14 wrz 2017, 14:36

Myjk napisał(a):Więc jedyne co sobie oszczędzasz to te nerwy, ale w takim wypadku można zlecić budowę i zamknąć po prostu oczy.

Nie tylko nerwy ale i odrobinę pieniądza, bo jeśli budowy nikt nie będzie nadzorował to będzie mega kibel i ciągłe dopłaty. Tamten ktoś pewnie chociaż trochę pilnował ;) Do tego oszczędzam czas bo się nie zastanawiam jakiego budulca użyć, skąd go ściągnąć itd., itp.

Myjk napisał(a):To też nie daje gwarancji, że taki dom jest w porządku. Wiele dzienników budowy widzę na forum FM gdzie ludzie pomimo pilnowania popełniają i pozostawiają błędy

Nie ma czegoś takiego jak dom bezbłędny – nawet jeśli wszystko będzie się robić samodzielnie to na pewno nie uniknie się wszystkich błędów. Błędów będzie mniej niż przy deweloperze albo braku zaangażowania ;)
Trusted computing – Yes or No?

Na świecie jest 10 rodzajów ludzi: ci, którzy rozumieją liczby binarne i ci, którzy nie.
Avatar użytkownika
Forumowicz
 
Od: 9 sty 2005, 22:46
Posty: 8975 (108/253)
Skąd: Częstochowa
Auto: Endek / Kupisiontes / Smark EV / iczy

Postprzez Tubi » 14 wrz 2017, 21:27

loockas napisał(a):
Tubi napisał(a):PS: Pochwalę się moim podjazdem, kostkę kładłem przez 1,5 miesiąca (140m2) ale popełniłem to całkiem sam


Czas i ciężkie auta zweryfikują czy zrobiłeś to dobrze :P


Na taka podbudowe to tir moze wjechac <faja>
Co się stanie, gdy jadąc z prędkością światła, włączysz przednie reflektory?
Avatar użytkownika
Forumowicz
 
Od: 20 lip 2009, 11:54
Posty: 1468 (10/16)
Skąd: Subkowy
Auto: Był:
Mazda Xedos 6 CA 2.0 MT 1992
Mazda Xedos 6 CA 2.0 MT 1994
Mazda Xedos 9 TA 2.5 AT 2000
Mazda 6 GY 2.3 MT 2005 fl
Jest:
Mazda 6 GJ SE 2.0 MT 2012

Postprzez cob_ra » 20 wrz 2017, 13:49

Zapodaj z czego i jakie warstwy dawałeś.

U siebie wykorytowałem i podbudowa bedzie miała ok 40-50cm grubości. Na to pojdzie granit.
Plan był taki, ok 30cm kamienia 0-63, ok 10cm 0-31, zagęścić, na to krawężniki granitowe(kostka 8/11) na jakiś czas pozostanie tak, potem zasypę piaskiem ok 3-4cm aby wyrównać powierzchnię i porobić spadki, na to granit(kostka lub odpad granitowy) wszystko zasypane mączką granitową i dobite zagęszczarką.


PS.
Pompa ciepła, ogrzewanie prundem to zło. Nie dość, że drogie to kupe kasy koszt grzania <dupa> <diabełek> <oczy> .

Pakujcie sie w wungiel, kominki, róbcie dziurawe domy aby wentylacja była i śmiejcie się z nas ile płacimy za grzanie na bazie znienawidzonego prundu, bo to nie ekologiczne i zanieczyszczanie środowiska. Elektrownie przez nas musza wiecej wugla spalić. Jesteśmy złem. <ok>
Avatar użytkownika
Forumowicz
 
Od: 6 gru 2006, 15:18
Posty: 724 (2/4)
Skąd: skierniewice
Auto: Była 323c
Honda Accord VI 1,8
Honda Accord VIII 2.0

Postprzez Grzyby » 20 wrz 2017, 22:45

brii napisał(a): Do tego oszczędzam czas bo się nie zastanawiam jakiego budulca użyć, skąd go ściągnąć itd., itp.

I równie dobrze możesz trafić na kibel z kijowymi materiałami....
Obrazek
d.pa
Avatar użytkownika
Forumowicz
 
Od: 3 paź 2004, 22:09
Posty: 17098 (114/180)
Skąd: KIELCE
Auto: Peugeot 508 Hybrid4 '13
Suzuki Aerio 2.3l LPG '06
Fiat Doblo 1.6 16V '01
Dacia DV 1.6 LPG '14
Fiat Ducato Pilote First 62A, 2.5TDI, '98
Burstner Amara 535TK

Kto przegląda forum

Użytkownicy przeglądający ten dział: Brak zidentyfikowanych użytkowników i 14 gości

Moderator

Moderatorzy Hyde Park