witam.
tak jak w temacie. chciałbym sie dowiedzieć który bezpiecznik jest odpowiedzialny za spryskiwacz, który nie działa lub co może być przyczyną jego niesprawności?
i jeszcze jedno pytanie: jak sprawdzić poziom płynu chłodniczego w chłodnicy?? i co gdyby było go mało? jakie mogą być objawy? czym to może grozić?
prosze o porady.
bezpiecznik spryskiwacza przedniej szyby.
Strona 1 z 1
gam gdzie masz bezpieczniki powinnien byc plastik i na nim sa oznaczenia bezpiecznikow
a jak sprawdzic poziom, w zbiorniczku cos masz ? jak nei to odkrecc korek od chlodnicy i zobacz czy cos jest jak nie to dolej jak duzo brakuje to odpowietrz chlodnice. aczym grozi moze zniszczyc silnik jak osiagnei za wysoka temp. a objawy ze nie ma mhm np caly czas chodzacy wiatrak za wysoka temp brak grzania w aucie
ok problemy unieszkodliwione 
więc tak: odnośnie spryskiwacza – wszystko było ok bezpieczniki w porzadku pompka sprawna przyczyna – zamarzniety płyn
!!
co do chłodnicy – dolałem troszke płynu i jest dobrze
pozdrawiam dzięki za pomoc
więc tak: odnośnie spryskiwacza – wszystko było ok bezpieczniki w porzadku pompka sprawna przyczyna – zamarzniety płyn
!!
co do chłodnicy – dolałem troszke płynu i jest dobrze
pozdrawiam dzięki za pomoc
Ostatnio edytowano 31 lip 2011, 18:43 przez Lesiu, łącznie edytowano 1 raz

- Od: 1 gru 2005, 11:29
- Posty: 361
- Skąd: Dębica
- Auto: 323F BA Z5 :] '96
Odkopię wątek.
Który bezpiecznik odpowiada za spryskiwacz przedniej szyby? Wiem że są oznaczenia na skrzynce, ale pomimo opisu nie wiem który to jest. Pompki w ogóle nie słychać.Wczoraj działało, dolałem płynu do – 60 stopni i rano cisza. Wcześniej był do -22 ale jakiś "lewy" bo zaczął przymarzać. Jakby bezpiecznik był ok to jak dostać się do pompki żeby sprawdzić czy nie zamarzła? Auto to 323 F BA.
Pozdrawiam.
Który bezpiecznik odpowiada za spryskiwacz przedniej szyby? Wiem że są oznaczenia na skrzynce, ale pomimo opisu nie wiem który to jest. Pompki w ogóle nie słychać.Wczoraj działało, dolałem płynu do – 60 stopni i rano cisza. Wcześniej był do -22 ale jakiś "lewy" bo zaczął przymarzać. Jakby bezpiecznik był ok to jak dostać się do pompki żeby sprawdzić czy nie zamarzła? Auto to 323 F BA.
Pozdrawiam.

- Od: 29 cze 2008, 21:55
- Posty: 36
- Skąd: Warszawa
- Auto: 323f '97 Z5 1,5l + LPG
witam jak w temacie tzn. nie mam spryskiwaczy szyby przedniej, mówić dokładnie nie słyszę silniczka do którego nie dociera prąd (próba z żarówką), sprawdziłem bezpieczniki (nie wszystkie udało mi się wyjąć nie mając przyrządu) w kabinie ale niestety nie wiem który odpowiedzialny jest za spryskiwacze, ktoś coś doradzi lub miał podobny problem? lub poleci sprawdzonego elektryka w Łodzi który naprawi i nie zedrze ostatniego grosza przed wyjazdem na wakacje? 
Ostatnio edytowano 3 lip 2015, 12:48 przez Marek 161BD081, łącznie edytowano 1 raz
Powód: Poprawa tematu
Powód: Poprawa tematu

- Od: 13 paź 2014, 18:37
- Posty: 8
- Skąd: Łódź
- Auto: Mazda 323F BA '95 1.5
Poprawiłem za ciebie temat bo w/g starego to nie miałeś samych spryskiwaczy 
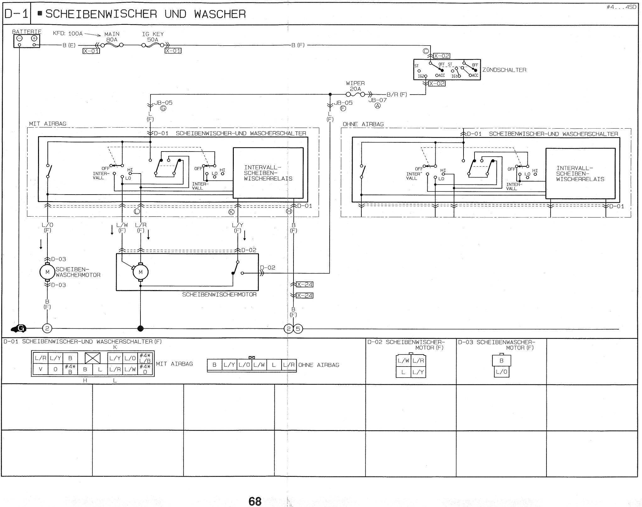
Bezpiecznik jest ten sam co od wycieraczek więc jeśli one działają to albo masz gdzies przerwę na kablach albo problem dotyczy przełącznika.
Jak jesteś ciut kumaty w elektryce to sobie bez problemów poradzisz, popatrz na schemat:
A tutaj rozmieszczenie elementów:
EDIT: dołączyłem temat do już istniejącego.
Bezpiecznik jest ten sam co od wycieraczek więc jeśli one działają to albo masz gdzies przerwę na kablach albo problem dotyczy przełącznika.
Jak jesteś ciut kumaty w elektryce to sobie bez problemów poradzisz, popatrz na schemat:
A tutaj rozmieszczenie elementów:
EDIT: dołączyłem temat do już istniejącego.
Ford C-MAX 1.6TDCi & AR 156 2.0TS & Honda Shadow VT1100 C3 Aero ’99
Były:
323F BA Z5 & Xedos 9 KL ’01
Honda Shadow VT1100C2 Sabre ’03
Honda Shadow VT500C '84
Były:
323F BA Z5 & Xedos 9 KL ’01
Honda Shadow VT1100C2 Sabre ’03
Honda Shadow VT500C '84
Strona 1 z 1
Kto przegląda forum
Użytkownicy przeglądający ten dział: Brak zidentyfikowanych użytkowników i 6 gości

