szkodnik_byd napisał(a):No dobra jeżeli jest taras nad garażem to nie da się inaczej
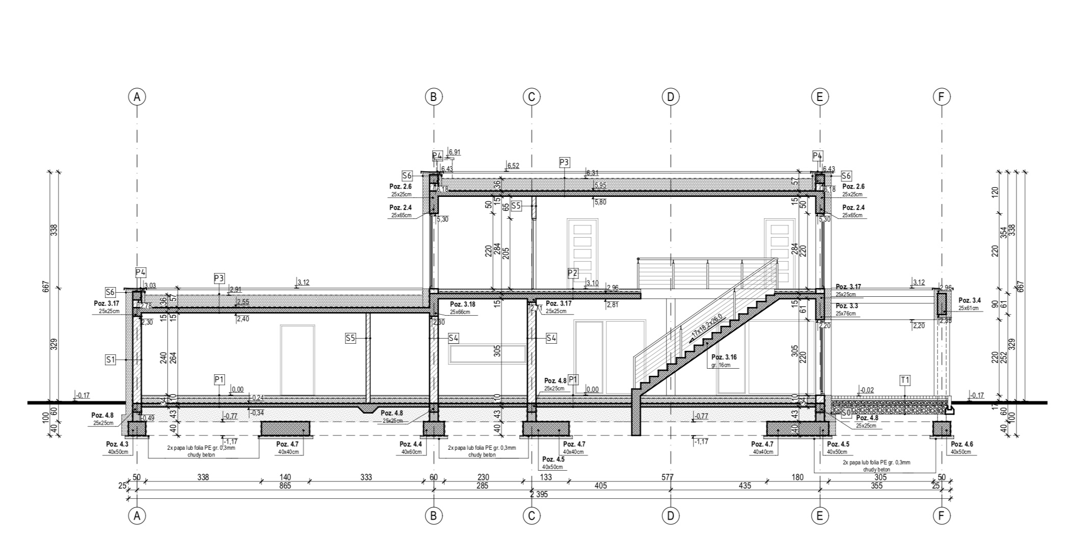
Nie ma tam tarasu. Choć tak, może tam być. Natomiast niższy garaż wynikał z tego, że wszystkie okna w domu są do ziemi (poza jednym w kuchni). No i po części też dla zachowania proporcji. Jak przyjdzie attyka to część garażowa będzie mniej wiecej o podobnej wysokości jak piętro (9cm różnicy z tego co pamiętam wiec optycznie raczej pomijalne).
szkodnik_byd napisał(a):No niestety tak to nie działa, optymalizacji materiałów się nie robi to ty wydasz miliony monet na stal
Robiłem optymalizacje, konsultowałem. Spokojnie

Poza tym 2 kat górnicza to u nas tereny na którym eksploracja się skończyła. Tak naprawdę te fundamenty są na wyrost zrobione. Ale jeżeli kopalnia partycypuje w kosztach, to wolałem to zrobić solidniej. Nie będę tu wszystkiego pisał publicznie. Dobrze wiecie kto się budował, że projekt projektem, a życie bywa inne
